
*文末附有中国文庙地图
如果说,教堂是西方人的精神寄托,那么对于深受儒家文化影响的国家来说,文庙就是儒家崇礼思想最具体的体现。

图源/古建中国
自建成以来,文庙就因承载着民众信仰而一直香火鼎盛。可以说,在中国,人们心中的文庙有着不亚于教堂的地位。

犍为文庙的《儒在犍为·大成礼赞》演出现场 图源/犍为县委宣传部
自文庙在中国形成体系后,便迅速发展到了周边国家,到了18世纪,越南、朝鲜、韩国、日本等中国周边国家都掀起了兴建文庙的风潮,甚至影响到了崇尚上帝、天主的西方国家。
据不完全统计,全世界至今约有2000多座文庙。

日本长崎孔子庙 图源/同程旅行


越南河内文庙 图源/阿诚的白日梦
可以说,文庙不仅是儒家礼教精神的物质载体,更经岁月洗刷后,成为代表儒学的文化胜景。
但你是否想过,盛极不衰的文庙究竟从何而来?又有哪些文庙是文庙文化的代表呢?或许,这篇文章会给你答案。
01
什么是文庙?
文庙,是纪念祭祀我国伟大思想家、教育家孔子的祠庙建筑。在历代王朝更迭中又被称作夫子庙、至圣庙、先师庙、先圣庙、文宣王庙。不过,最普遍的叫法,还是文庙。

图源/摄图网
不过,我们所说的文庙,其实是对所有文庙的统称。通常的文庙分为三类,一种是由孔子后人所建的“孔子家庙”,除此之外,还有封建帝王和官员专用的国庙和与“庙学”互通的学庙。
事实上,除了作为国庙的曲阜孔庙、北京孔庙和现曲阜孔府内家庙、衢州家庙这四座孔庙外,中国其他的孔庙都属学庙性质。
与单纯祭祀孔子的孔庙和国庙相比,属于学庙的文庙除了有祭祀功能外,还需附设在地方官学(儒学)之内,且必须有棂星门、大成门等一系列礼制建筑及完整的配享从祀体系。

哈尔滨文庙 图源/摄图网
除了“圣人”孔子本身的影响力外,文庙之所以蔚然成风,也离不开历代统治者的尊孔尚儒。
孔子在鲁国逝世后,鲁哀君悲痛不已,次年就下令把孔子在曲阜的故宅改作庙堂,将其生前所使用的衣、冠、车、琴、书册等保存起来,按岁时祭祀。这便成为中国文庙的开端,诸侯祭孔的开始。

安徽桐城文庙 图源/摄图网
汉代,刘邦过鲁国时专程至曲阜祭祀孔子,使孔庙由家庙向国庙逐步演变。东汉时期已经有如郑州文庙这样在鲁地之外出现的文庙。
魏晋南北朝时期,统治者继续重视儒学。
北魏孝文帝下诏郡县均祀孔子,为文庙在各地的兴起、与学校的合而为一奠定了基础。之后他所立的“先圣庙”则证明,修建文庙作为国家行为,已经开始在华夏各地出现。

泉州府文庙 图源/摄图网
隋唐时期文庙的建造也得到了进一步的发展。公元627年,唐太宗诏令天下学皆立周公、孔子庙。后来又停周公祀,专祀孔子,尊孔子为“先圣”,从此开始了全国范围内大规模地因学立庙或因庙立学。
宋代统治者还下诏由官府出钱修葺文庙,元代时,各地修建孔庙早已蔚然成风。
明清时期,每一州、府、县都有文庙,而清朝更是中国文庙发展的鼎盛时期——中国境内现存的孔庙建筑几乎都经历了清朝大规模地维修、扩建。

浏阳文庙 图源/摄图网
02
文庙里有什么?
与现代建筑追求独特与个性不同,文庙承载着儒家深厚文化,每个单体建筑物名称和构成都有典可据。
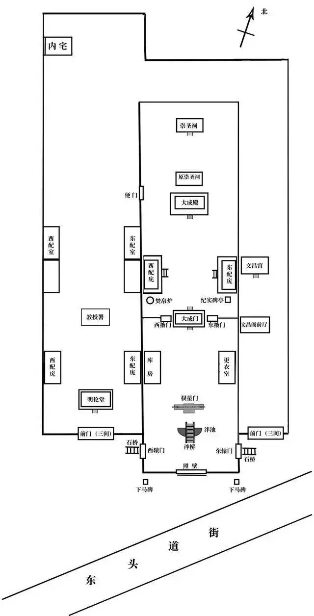
绝大多数文庙都有泮池、万仞宫墙、棂星门、大成门、大成殿、明伦堂等建筑群组成,扣榫式结构使之兼顾牢固与雄伟之势。


云南建水文庙俯拍图 图源/鸿慈永祜

图源/长春文庙平面图
泮池:大成门正前方的半月形水池。
鲁僖公在位时为了兴学养士,便于曲阜的泮水岸边筑起了规模宏大的泮宫。因其东、西、南三面围以半圆状池水,形如半壁,故称“泮池”。后来演变成文庙专用,成为文庙兴官学的标志。

图源/摄图网
万仞宫墙:通常是位于文庙中轴线上的第一座建筑,一般具有影壁或照壁的作用。

图源/美篇
棂星门:文庙中轴线上的牌楼式木质或石质建筑,古代中国传说棂星为天上文星,以此命名意味着孔子为天上星宿下凡。

云南澄江文庙 图源/鸿慈永祜

石屏文庙 图源/鸿慈永祜
大成门:大成门又称仪门、戟门,是通往大成殿区域内的正门,也是文庙的第二道大门。其左中右的三个门表示对孔子及文庙的尊崇,平时仅以两旁出入,遇有重大典礼仪式才开启中门。

犍为文庙 大成门 图源/犍为县委宣传部

图源/中国国情
大成殿:祭祀孔子的正殿,是各地文庙的主体建筑。各地文庙大成殿因级别不同,其规格也不同,有三开间、五开间、七开间和九开间四种规格。

代县文庙大成殿 图源/鸿慈永祜
古代称古乐的一变为一成,九变为九成,至九成而乐终称为大成。宋时,宋徽宗尊孔子“集先圣先贤之成”,赐此殿名“大成殿”,充分体现了孔子思想无与伦比的崇高地位。
由于它是最核心的祭祀建筑,因此往往得到特殊的修缮和维护,目前已是全国各地文庙建筑中保存数量最多的一类。

河南府文庙大成殿平面图 图源/北京交大古建筑
明伦堂:自文庙发展为庙学合一的建筑后,该建筑便为各地文庙内府学或县学用于讲学的场所,是各地文庙的重要组成部分。面阔有七间、五间、三间不等的形式。

图源/建筑中国
除了上述所言外,文庙中还有东西厢房、崇文阁、魁星阁、乡贤祠等代表性单体。
它们在几百年的历史风雨中虽然有些已不及当年风采,但仍可从其雕梁画栋之处,感受到古代建筑的艺术之美。

图源/摄图网
棂星门、大成殿……这些规整而严谨的建筑除了是孔子的祭祀和尊崇之所,也是我们对以儒学为代表的中国传统文化的尊重与铭记。作为一个城市古今发展的精神延续,这种传承必定会历久弥新。
03
文庙参观指南
现存的每一座文庙都是建筑中的艺术,值得我们用心感受它们的魅力。但如果时间有限,不能一一看过的话,这几座代表性文庙一定不能错过。
中国四大文庙
南京夫子庙、北京孔庙、曲阜孔庙和吉林文庙作为中国四大文庙,除了是儒家文化杰出的代表,更是人们旅游打卡的必去景点。
01/ 南京夫子庙
孔庙之“冠”
南京夫子庙是中国第一所国家最高学府,它不仅是明清时期南京的文教中心,同时也是居东南各省之冠的文教建筑群。

图源/摄图网
南京夫子庙始建于337年,经四毁五建后才终于是如今的风貌。
它以大成殿为中心,南北成一轴线,左右建筑对称,主要由孔庙、学宫、贡院三大建筑群组成,被誉为“秦淮名胜”。在六朝至明清时期,世家大族多聚于附近,故有“六朝金粉”之说。


夫子庙夜景 图源/摄图网
此外,早在南朝时期就流行的南京夫子庙灯会也是特色民俗文化活动。
夫子庙灯会又称“金陵灯会”,主要在每年的春节至元宵节期间举行,堪称全国之冠,享有“秦淮灯彩甲天下”之美誉。
02/ 北京孔庙
庙学相依,帝王之祭
北京孔庙,又名“先师庙”,始建于1302年,为中国古代元、明、清三朝祭祀孔子的场所。

图源/POCO
北京孔庙呈对称分布,中轴线坐落着主建筑,其他部分左右分布。
中轴线上的建筑从南向北依次为先师门、大成门、大成殿、崇圣门及崇圣祠,主体建筑都覆以黄色琉璃瓦。

图源/POCO
该建筑由三进院落构成:第一进院落形成的前导空间为半开敞形式。第二进院落形成的祭礼空间方阔周正,由大成殿、东西配庑、器库等建筑构成,空间封闭、气氛严肃。第三进院落形成的后续空间虽面积较小,却不失韵味。
历经700多年的历史文化积淀,北京孔庙已然是研究中国古代科举、孔子儒学、建筑形式和文化内涵的重要史料和实物。
03/ 曲阜孔庙
全国规模最大的孔庙
曲阜孔庙又称“阙里至圣庙”,是鲁哀公于公元前478年修建。
经历代帝王不断祭祀与扩建,曲阜孔庙的规模越来越大,成为全国规模最大的孔庙,被梁思成称为世界建筑史上的“孤例”。

图源/文化三江
曲阜孔庙现存的建筑群绝大部分是明、清两代完成的。
以最南端的棂星门为起点,到北端的圣迹殿结束,前后共九进院落。庙内有殿堂、坛阁和门坊等464间。仿北京故宫样式,四周围红墙,四角配角楼。

图源/图虫创意
院落空间划分则以“德作天地”“道冠古今”两座木牌坊开始。
两座木牌坊一方面标示了孔庙建筑群的重要性质和至高等级;另一方面作为进入孔庙的引导,渲染了孔庙建筑群入口的壮观气氛,渗透着浓厚的伦理特性。
04/ 吉林文庙
清朝入关第一座文庙
吉林文庙始建于1736年,其建筑仿皇宫之制。
大成门、大成殿、崇圣殿三大主体建筑坐落在一条中轴线上,两侧辅助性建筑呈对称状排列,四周由3米高红墙环绕,正门有照壁遮挡。


图源/途牛旅游网
作为清朝在东北建立的第一座文庙,吉林文庙是清朝政府对汉文化传入东北地区的认可,对满汉文化的融合起到了促进作用。

吉林文庙 图源/雁行江湖
整体建筑运用沿中轴线延伸、层层递进的形式由院落向主体建筑过渡。各部分建筑之间相互协调,相互衬托,以“和”为美,但形制、比例、色调上又在表现自身的同时突出了尊卑主次的秩序,充分显示出大成殿的崇高地位。

图源/这里是吉林 摄影/杨简铭

图源/汽车之家
吉林文庙为大式建筑,主体建筑、照壁、围墙均以黄琉璃瓦覆顶。大成殿双重飞檐,是典型的宫殿式建筑,歇山式殿顶,龙凤脊,正面九龙,背面九凤。格调高雅而庄重。
文庙之最
01/ 平遥文庙
建筑群最古老的文庙之一
平遥文庙坐北向南,现存四进院落,中轴线上排列有:棂星门、大成门、大成殿、明伦堂、敬一亭、藏经阁等建筑。

图源/友艇
文庙的大成殿重修于1163年,距今已有850多年的历史,比曲阜孔庙早3I7年,比南京夫子庙早706年,比北京文庙早248年,是全国现存文庙较早的大成殿。
大成殿面阔五间,进深五间,平面近方形,单檐歇山顶。殿内有孔子的画像,以及一些描述孔子生平事迹的雕塑和文献。

图源/游走旅行的摄影人
平遥文庙与城墙东南角的魁星楼、文昌阁组成一座完整的文庙系建筑群,在国内非常罕见。

图源/游走旅行的摄影人
02/ 武威文庙
西北第一大文庙
武威文庙也称“圣庙”,是西北第一大孔庙。始建于公元1437—1439年,后经明、清及民国年间的重修扩建,逐渐形成一组布局完善的建筑群,迄今已有500余年的历史。

图源/白浪情
建筑坐北向南,东为文昌宫,中为文庙,西属凉州府儒学院。整个建筑布局对称,结构严谨,是一组造型雄伟的宫阙式建筑群。
因规模宏大,气势雄壮故在明清之际被誉为“西北学宫之冠”,是凉州文人墨客祭祀孔子的圣地。

图源/微游甘肃
03/ 建水文庙
西南最大的文庙
建水文庙,位于云南省红河哈尼族彝族自治州西北部的建水县城内,是一座全国屈指可数的大型文庙,也是云南省继中庆(昆明)、大理之后,最早创建的第三座庙宇。

建水文庙 图源/鸿慈永祜

巨大的泮池 图源/鸿慈永祜
经过明、清两代扩建,建水文庙的占地面积已经达到114亩。由于殿前的巨大泮池,它的规模甚至直逼曲阜孔庙。
建水文庙的总体布局采用中轴对称宫殿式,仿照曲阜孔庙的格局建造,有1殿、2庑、2堂、2阁、5祠、8坊,是一组规模宏大的建筑群。




建水文庙的牌坊们 图源/鸿慈永祜
大门为肃穆的“太和元气”坊,迎面为20余亩的“学海”(泮池),塘内碧波荡漾,池中建有思乐亭。
在建水文庙的建筑中,其中最引人瞩目的当属大成殿。大成殿建于明弘治年间,28棵柱支撑全殿。大门左右2棵檐柱雕巨龙盘绕,称为“石龙抱柱”。

石龙抱柱 图源/鸿慈永祜
庙宇周围古柏森森,显得庄严肃穆,雄伟壮观,有“金碧壮丽甲全滇”之美誉。
04/ 德庆学宫
岭南现存最古老的文庙
德庆学宫始建于1011年,至今已有一千多年历史,建后曾倒塌,1297年重建,是广东省屈指可数的现存宋元两代砖木结构古建筑。

德庆学宫鸟瞰 图源/时代树暴走

图源/时代树暴走
德庆学宫由大成殿、崇圣殿、尊经阁、乡贤祠、杏坛等建筑组成。
由于当地气候潮湿,保存下来的木构古建不多,宋元木构更是屈指可数,德庆学宫可谓是广东木构古建筑的瑰宝。

图源/时代树暴走
主建筑大成殿以“四柱不顶”闻名于世,即殿内明间四根金柱不到殿顶,而是在柱顶横架座斗枋,由十二朵莲花状斗拱承托压槽枋和井口天花板,被誉为“南国古建筑明珠”。
文庙,开创了一种新的祭祀模式,是中国“尊师重教”传统的重要标志。

图源/鸿慈永祜
在文化日渐多元的当下,我们走进文庙,不仅是祭祀孔子,更是一种尊重中华优秀传统文化的表现,是对中国文化及其创造者们表达敬意的途径和方式.
我们在这缤纷世界里,依旧能通过文庙感受到民族文化的生命。

文章来源:艺旅文化
